Greta Garbo: Πωλείται το σπίτι της όπως ήταν όσο ζούσε
Mar 25, 2017Το σπίτι της εμβληματικής ηθοποιού του βωβού και Χρυσού Χολιγουντιανού κινηματογράφου, Greta Garbo, πωλείται… όπως είναι επιπλωμένο.
Η εντυπωσιακή ηθοποιός που κατατάχθηκε από το Αμερικανικό Ινστιτούτο Κινηματογράφου πέμπτη στη λίστα με τις 25 μεγαλύτερες σταρ όλων των εποχών, το 1954 αποφάσισε να μετακομίσει από την Καλιφόρνια στη Νέα Υόρκη και να μείνει μακριά από τη δημοσιότητα, μέχρι το 1990 που έφυγε από τη ζωή.
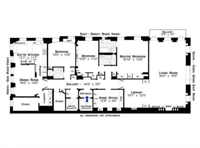
Αυτό λοιπόν το σπίτι της Νέας Υόρκης, συγκεκριμένα στο Μανχάταν, τώρα πωλείται έναντι $5,950,000, είναι οικοδόμημα του 1927 και διαθέτει τρία υπνοδωμάτια, τρία μπάνια και εσωτερικό ανελκυστήρα.
Έχει χτιστεί στις όχθες του East River και οι μεσίτες που έχουν αναλάβει την πώλησή του ισχυρίζονται ότι παραμένει όπως το άφησε η Greta Garbo.











